산림청 국립산림과학원(원장 전범권)은 국산 목재 이용을 활성화하고, 누구나 보다 편리하게 목조주택을 지을 수 있도록 하기 위해 "목조주택 표전설계도" 8종을 개발, 보급하고 있다.
설계도 중목구조 주택용으로, 귀농귀촌인을 위한 농가형 4종(85㎡, 110㎡A, 110㎡B, 136㎡), 귀촌형 4종(63㎡, 81㎡, 84㎡, 108㎡)으로 구성돼 있다. 이를 활용할 경우 설계 비용과 시간을 절감하고, 행정절차도 건축 신고로 완화할 수 있다.
●농가형 25 Type
면적: 84㎡, 1층: 84㎡ / 다락방: 17.95㎡



●농가형 33A Type
면적: 110㎡, 1층: 110㎡ / 다락방: 17.95㎡



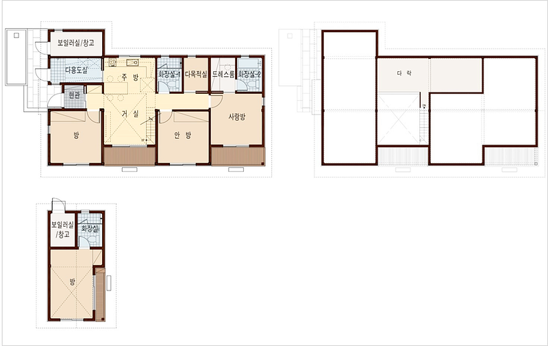
●농가형 33B Type
면적: 110㎡, 1층: 110㎡ / 다락방: 17.95㎡



●농가형 41 Type
면적: 136.08㎡,
1층: 136.08㎡ / 다락방: 17.95㎡



[출처: 전원주택라이프]:http://naver.me/Fn61EaVJ

반응형
'건축 TIP' 카테고리의 다른 글
| [목구조 정보] 하자없는 지붕 작업을 위해 알아두어야 할 기본 원칙들과 참고할 사항 (0) | 2021.06.14 |
|---|---|
| [목구조 정보] 목조주택 골조 공사, 이것만은 꼭 챙기자 (0) | 2021.06.14 |
| [목구조 정보] 무료로 사용 가능한 목조주택 표준설계도(1) (0) | 2021.06.14 |
| [목구조 정보] 중목구조의 정의와 장점 (0) | 2021.06.14 |
| [목구조 정보] 기초의 단열. 기초의 외단열과 지내력 (0) | 2021.06.14 |
댓글