건축물의 배치와 형태
패시브하우스에 있어서 가장 중요시 될 사항은 건물의 향이다. 일사 취득과 손실의 상관관계에 있어서 향이 절대적인 요소를 차지하기 때문이다. 다행인 것은 국내의 정서상 주택에 있어서 향의 고려가 이미 중요한 인자로 작용되고 있었다는 점이다.
동일한 형태의 주택이라 할지라도 남향배치와 북향배치의 열손실과 취득의 차이는 상당하기 때문에 평면의 배치에 있어서 남향 또는 동향의 배치가 원할 하도록 조정될 필요가 있다. 또한 외기와 접하는 면적을 최소화하는 것이 열손실을 막는데 중요한 인자로 작용하므로 되도록 단순한 형태를 지향하는 것이 좋다.
그러나 그 모든 것이 대지의 상황과 사용자의 편의를 먼저 고려해야 한다.
사용자가 살기 불편한 패시브하우스는 아무런 의미가 없기 때문이다.
대 원칙은 다음과 같다.
- 동,남향 배치를 고려하여 평면을 구성한다.
- 주 사용실을 동,남향에 배치하고, 부 사용실을 북, 서향에 배치토록 한다.
(창호면적에 절대적인 영향을 미치기 때문이다.)
- 동일한 체적에 대해 외기에 접하는 면적의 비율이 최소화되도록 매스계획을 한다.
즉 가급적 심플한 외관을 가져야 하는 것인데, 이 역시 정성적으로 단순하다고 이야기를 하지 않고, 이를 수치로 표현한 것이 AV값이다.
이를 AA값이라고 표현하는 국가도 있다.
AV값에서 A는 외피면적, V는 체적이며, 외피면적/체적으로 계산된다.
AA값에서 앞의 A는 외피면적, 뒤의 A는 바닥면적이며, 외피면적/바닥면적으로 계산된다.
둘의 결과론적인 차이는 없으며, 어느 것을 사용해도 무방하다. 아차피 상대값이기 때문이다.
이 글은 AV값으로 설명되었다.
** 아래의 예는 심플한 주택이 얼만큼 에너지를 더 절약하느냐에 대한 계산 값이다. 둘 다 면적이 100㎡ 이며, A주택은 체적대 입면적의 비(AV값)가 1.43, B주택은 AV값이 1.63이다.


각각 주택모형의 에너지요구량 계산을 해보면 다음과 같다.
- 조건 :
사용프로그램 : CE3™
벽체,지붕열관류율 : 현행 법규에 맞춘 단열
창호열관류율 : 2.8 w/㎡k
난방설정온도 : 20℃
냉방설정온도 : 26℃
기밀성능 : 50Pa, 2회/h
A주택 결과 : 14.9리터주택

B주택 결과 : 16.3리터주택

결과적으로 약 1.4리터 차이이다. 이 정도 차이면 사실 아무런 차이가 없다고 말 할 수도 있다. 그러나 패시브로 가기위해 단열을 강화할 경우 이야기는 달라진다. 또한 100㎡ 이면 1년에 140리터 차이이다.
단열조건을 패시브하우스 수준까지 맞추면 B 주택은 결코 도달할 수 없는 수치에 부딛히게 된다.. 즉, 한계점이 일찍 발생한 다는 이야기이다.
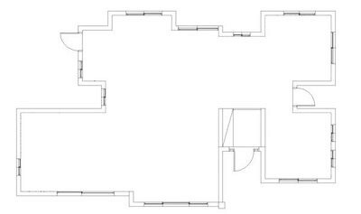
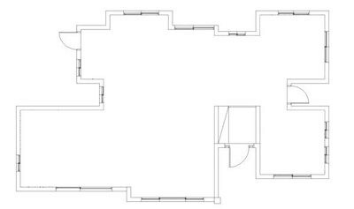
사실 B주택의 평면만 하더라도 매우 간결한 형태 축에 속한다.. 아래는 흔히 단독주택으로 디자인되는 평면의 한 유형(이하 C주택이라 칭함)과 그 에너지 요구량 계산값을 같이 구해 놓았다.
계산결과는 난방에너지요구량으로 약 18.1리터주택으로 결과가 나온다.


위의 A주택에 비해 약 3.2리터차이가 나며, 그 차이 역시 미비해 보일지라도 이 형태의 평면으로는 결코 아무리 단열을 강화해도 패시브하우스 요건에 들어가지 않는다..
(여기서 "아무리 단열을 강화"라는 말의 의미는 현실적인 범위내에서의 단열을 뜻한다. 주택에 단열재를 1미터두께로 할 수는 없으니...)
-------------------------------------------------------------------------------
아래는 C주택의 단열과 기밀성능을 패시브하우스 수준까지 올린 후 다시 계산 해본 결과치 이다.
- 조건 (기타 조건은 위와 같다)
벽체열관류율 : 0.15 w/㎡k
지붕열관류율 : 0.11 w/㎡k
창호열관류율 : 0.8 w/㎡k
기밀성능 : 50Pa, 0.6회/h

위와 같이 결과는 약 3.9리터 주택으로 기록된다. (외부 차양의 조건에 따라 결과가 다소 변동할 수 있다.)
즉, 바닥면적 대비 외피의 면적이 과다할 경우 패시브주택 기준에 맞춘 단열을 하더라도 1.5리터에 도달하지 않는다. 그러므로 단열만 고도로 강화한다고 해서 패시브주택이 될 수 없는 이유가 바로 여기에 있는 것이다. 패시브하우스를 너무 만만히 보지 말았으면 좋겠다.
** C주택과 B주택의 에너지요구량의 차이는 약 15% 정도 차이가 난다. 또한 외벽면적의 차이로 인해 C주택 대비 B주택의 공사비가 더 저렴하다..
외벽 면적의 차이가 약 30㎡ 이므로, 구조체와 내외부 마감재를 비용으로 환산하면 매우 큰 금액차이가 날 수도 있다..(C주택의 AV값은 1.94이다.)
결론은 자명하다. 공사비를 비싸게 치루고도 에너지를 더 사용할 것인가?
----------------------------------------------------------------------------
** 이 글의 처음에도 적었듯이 이 모든 것이 결국 "건축주가 사용하기 편한가?" 가 우선이다. 대지 상황과 기타 모든 것을 고려하였을 때 C주택 평면으로 가야 한다면.. 그렇게 가야 한다.. 공사비가 더 들고, 에너지사용량이 더 많더라도..... 다만 이 경우에 건축가는 단열을 조금 더 강화해야 한다. 그래야 C주택 건축주도 B주택만큼 따뜻하게 지낼 수 있기 때문이다.
** 경험상 1.5리터 이하로 성능을 맞출 경우 거의 박스에 가까운 형태의 주택으로 귀결된다. 하지만 대지나 건축주의 요구 상황과 맞지 않을 때가 있다. 패시브를 처음 시작하시는 분들은 이점에 대해 많은 갈등을 할 것이다. 선택의 갈등이다. 1.5리터를 맞출 것인가? 외피면적이 많더라도 대지나 기타 기능적 조건에 맞출 것인가? 하는 것이다. 조언을 하자면 대지에 맞추는 것이 맞다. 그것이 건축주에게 이롭다면 결국 에너지적 성능보다 우선이기 때문이다. 3리터든 7리터든 모두 의미가 있다.
** 하지만 분명한 것은 "건축주가 사용하기 편한가?"와 "건축주의 마음에 드는가?"는 전혀 다르다는 것이다. 때때로 건축가는 "건축주가 당장 마음에 들어하지 않아도" 건축주에게 이로운 건물을 강하게 권할 의무가 있다. 그것이 전문가가 해야 할 역할이다.
출처: 한국패시브건축협회[http://www.phiko.kr/bbs/board.php?bo_table=z3_01&wr_id=6]

'건축 TIP' 카테고리의 다른 글
| [목조주택 정보] 목조주택 지을 때 골조보강용 철물을 사용하는 이유, 안정적인 연결 Positive connection (0) | 2021.11.26 |
|---|---|
| [패시브주택 정보] 열회수형 환기장치의 이해 (0) | 2021.11.26 |
| [패시브주택 정보] 제로에너지주택 필수 조건 패시브와 액티브 기술 (0) | 2021.11.26 |
| [패시브주택 정보] 기초의 외단열과 동결심도 (0) | 2021.11.26 |
| [패시브주택 정보] 주택구조별 패시브하우스 실현 전략 (0) | 2021.11.26 |
댓글