경제적으로 토지 구매와 설계를 했다면 이제 본격적으로 주택을 시공해보자. 같은 곡도 연주하는 사람에 따라 다르게 표현되듯 설계 도면도 마찬가지다. 설계 도면을 시공으로 실현시키는 과정에서 확연히 달라질 수 있다. 어떠한 과정을 거치든 건축물을 위해 건축비를 지불하고 보수하며 살아가는 것은 오롯이 건축주의 몫이다.

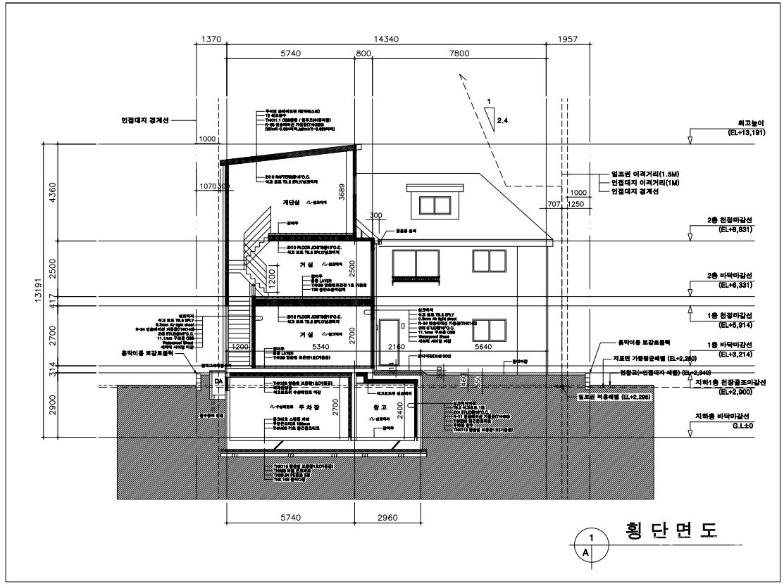
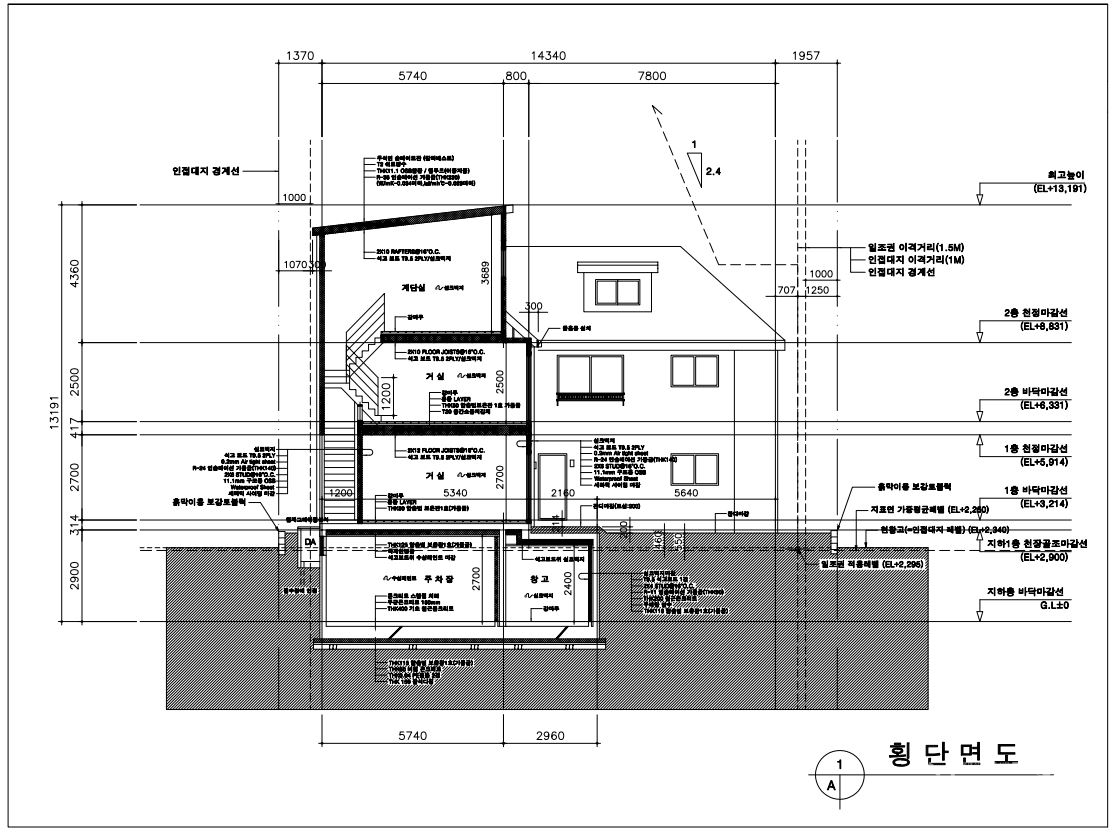
일반적인 건축 도면
가장 저렴하게 짓는 방법은 당연히 직접 시공하는 것이다. 자재를 직접 발주하고 각 공정별 작업자를 수배해야 한다. 이를 위해서는 자재를 구매할 때 자재업체의 소개를 받는 방법이 가장 좋다. 물론 책임 문제가 있기에 소개를 꺼려하지만 담당자와 좋은 관계라면 경험 많은 공정별 작업자를 만날 수 있다. 하지만 이를 위해서는 아주 많은 시간과 노력이 필요하다. 수많은 자재와 시공 방법들을 선택하고 결정하는 것도 어려운 문제다.
다음으로는 믿을만한 주택 시공사에 의뢰하는 것. 10년 이상의 경험이 축적된 회사들은 많은 시행 착오를 겪어왔기에, 조금 더 경쟁력 있는 가격으로 자재를 구매할 수 있고, 경험 많은 작업자들을 보유하고 있다. 물론 주택 시공사 역시 매번 다른 집과 다른 자재 그리고 다른 현장 여건 등으로 진행되기에 항상 같은 품질을 기대하기는 어렵지만 순탄하게 진행될 가능성이 높다.
마지막으로는 현장소장에게 맡기는 것이다. 경험 많은 현장소장에게 보수를 주고 인건비와 자제비 등을 직접 결재하는 방법이다. 현장소장에 대한 믿음과 기대가 예상 밖의 공사비에 엇나가기도 하고, 하자 책임 소재에 대한 어려움도 있다. 그렇기에 애초 시작부터 이 문제에 대해 명확하게 정리하고 진행하는 것이 좋다.

자연과 어우러진 벽돌집
이제 각 공정별 자재와 시공 방법을 선택해보자. 물론 이런 것들이 설계도면에 자세히 나와 있다면 좋겠지만 일반적으로는 그렇게 디테일하게 나와 있지 않다. 그렇기 때문에 예산에 맞는 적정한 자재와 시공 방법을 선택해야 한다. 작은 지면에 수많은 자재와 시공 방법을 나열하고 장단점을 설명하기는 어렵기에 많은 건축주들이 궁금해 하는 것들 위주로 써보고자 한다.
난방
알래스카처럼 춥고 아프리카처럼 더운 우리나라는 집짓기 참 어려운 나라다. 그만큼 단열에 많은 관심을 가지고 있다. 그럼 어느 정도로 하는 게 경제적일까. 폐열회수장치와 기밀테이프시공, 기밀테스트, 열교제거장치 등은 건축비가 넉넉하다면 충분히 고려할만 하지만 일반적인 건축주가 지불하기에는 너무 고가다. 일반 주택과 경제적으로 단열을 한 주택 그리고 패시브 주택의 난방비를 비교했다.

건축비는 외장재, 내장재 등에 따라 달라지고 평수나 생활 습관, 온수용 급탕 등에 따라서도 천차만별이기에 정확하게 비교할 수는 없다. 하지만 주택의 단열에 좀 더 투자를 한다는 것은 장기적으로 경제적이다.
외장재
외장재는 집을 보여주는 제일 중요한 자재다. 건물의 디자인을 결정하고 건물을 보호하는 역할을 한다. 가장 많이 사용되는 외장재는 외단열시스템, 벽돌, 세라믹사이딩, 목재 등이 있다. 각자 장단점이 있는데 가격도 다르고 시공법도 여러가지다.
■ 외단열시스템 - 흔히 드라이비트, 스터코로 부른다. 단열재에 미장 마감을 한 것으로 시공이 쉽고 다양한 스타일의 주택을 소화할 수 있다. 다른 외장재에 비해 저렴하다. 하지만 마냥 저렴하게만 진행한다면 몇 년 후 더 큰 비용이 발생할 수 있으므로, 몇 가지 사항들을 신경 써야 하며 화재에 조심해야 한다. 방충망이나 오염물이 창 주변을 더럽힐 수 있으므로 창호 주변의 후레쉬 작업이 반드시 필요하고, 수축 팽창이 심한 곳은 이에 맞는 마감재를 선택해야 한다. (재료 포함 시공비 ㎡당 55,000원 - 70,000원)
■ 벽돌 - 조적 공사를 하기 전 단열재의 두께를 자유롭게 선택할 수 있고 벽돌의 오염이 적어 유지 보수가 필요 없다. 하지만 벽돌의 색상을 선택하는 것이 쉽지 않고 밝은 색의 자연스러운 질감이 없어 집의 외관이 투박해질 수 있다. 가장 비싸고 시간도 오래 걸린다. (재료 포함 시공비 100,000원 - 180,000원)
■ 세라믹사이딩 - 몇 년 전에는 아주 고가였으나 경쟁이 심해지고 시공자들도 많아지면서 가격이 낮아지는 추세다. 오염이 덜하고 단단하다. 하지만 외단열을 하게 될 때는 비용이 상승하기 때문에 단열재 정도로만 사용한다. 두께와 시공 방법에 따라 가격 차이가 크다. (재료 포함 시공비 ㎡당 100,000 - 150,000원)
■ 목재 - 주로 적삼목이나 탄화목, 천연 방부목을 사용하는데, 자연스럽고 따뜻한 느낌을 줄 수 있다. 하지만 몇 년에 한 번씩 목재보호 스테인을 도포해 주어야하므로 낮은 부분에 소량 사용하기를 권한다. (시공비 50,000 - 80,000원)
■ 시멘트사이딩 - 미국이나 호주의 집들이 대부분 시멘트사이딩으로 돼 있다. 값이 싸고 시공이 쉽다. 조립식 주택 같다는 인식이 있지만, 외장재로 좋은 자재 중 하나다. 또 다양한 색상으로 도장할 수도 있다. (시공비 50,000원 - 70,000원)
■ 타일 - 점토 타일, 세라믹 타일 등을 미장면에 붙이는 재료로 단열재 위에 시공하므로 외단열 시스템의 장점과 벽돌의 장점이 혼합돼 있다. 제품이 다양하고 마감이 깨끗해 다양한 스타일에 모두 적합하다. 하지만 시공 불량 시 이탈의 위험이 있다. (시공비 70,000 - 120,000원)

기와 지붕을 시공한 전원주택
지붕재
지붕재 역시 집의 스타일과 밀접한데, 난방보다 냉방 성능에 초점을 맞춰야 한다. 가격은 아스팔트슁글, 강판, 세라믹지붕재, 기와 순으로 비싸다. 단순히 재료비와 시공이 아닌 구조와 지붕 형태에 맞는 재료를 선택해야 한다. 지붕이 시공이 복잡한 곳을 기와로 한다면 조각기와가 많아져 마감이 힘들어질 수 있다. 기와의 무게를 고려해 지붕 구조도 생각해야 한다. 강판의 경우 눈이 한꺼번에 미끄러질 수 있으므로 스노우 가드와 같은 보완 자재도 고려해야 한다. 아스팔트슁글은 가격이 저렴하면서도 시공이 쉽고 유지 보수가 편리하므로 마감을 잘만 해 준다면 가성비 좋은 지붕재가 된다.

강판 지붕재를 얹은 깔끔한 단독주택
지열보일러 & 매립형 에어컨
많은 이들이 지열보일러를 설치하면 난방비를 아낄 수 있는지 물어본다. 맞는 소리다. 많이 줄어들고 간편하다. 전기세만 따로 내면 된다. 하지만 이면을 보면 생각이 달라진다. 지열보일러 설치비 자체가 고가이며 삼상전기(산업용 전기는 380V)가 따로 필요하다. 그 뿐만이 아니다. 지열보일러 부피 자체가 크기 때문에 넓은 공간이 필요하고, 고장이 나거나 수리가 어려운 것도 예상해야 한다. 연간 몇 십만 원을 줄이기 위해 비싼 설비를 들이는 것은 경제적이지 못하다. 매립형 에어컨의 경우 배관이 매립되고 깨끗하다. 펌프 고장이나 배수가 안 될 경우 등을 염두해 두어야 한다.

아스팔트슁글을 사용한 단독주택
집은 하나하나 모두 다른 유전자를 가지고 태어난다. 수많은 자재들로 인간의 삶이 편리하도록 만들어지는 만큼, 10년 뒤 혹은 100년 뒤에도 유지 보수가 쉽고 편해야 경제적이다.
'건축 TIP' 카테고리의 다른 글
| [건축 정보] 아트리움(Atrium) (0) | 2021.12.20 |
|---|---|
| [건축의 기본] 전원주택틔 기초, 기반공사 - 정화조 종류와 오수 처리시설 설치 기준 (0) | 2021.12.16 |
| [건축의 기본] 외벽 벽돌 쌓을 때 윕홀, 에어벤트 설치 방법 (6) | 2021.12.16 |
| [건축의 기본] 계단의 종류와 규격 (0) | 2021.12.16 |
| [건축의 기본] 지붕의 모양별 종류와 특징 (1) | 2021.12.16 |
댓글